返回

装修效果图

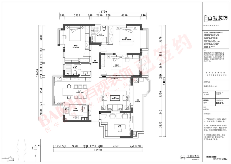
荣盛华府172平米美式风格设计

美式

预约咨询

案例简介

风格:美式

户型:四居室

面积:140-180㎡

区域:荣盛华府

关联设计师:吴先军

简述:

设计说明









一键预约:  18130360251

预约免费设计,可直接拨打热线

一键预约
咨询电话 在线客服