返回

装修效果图

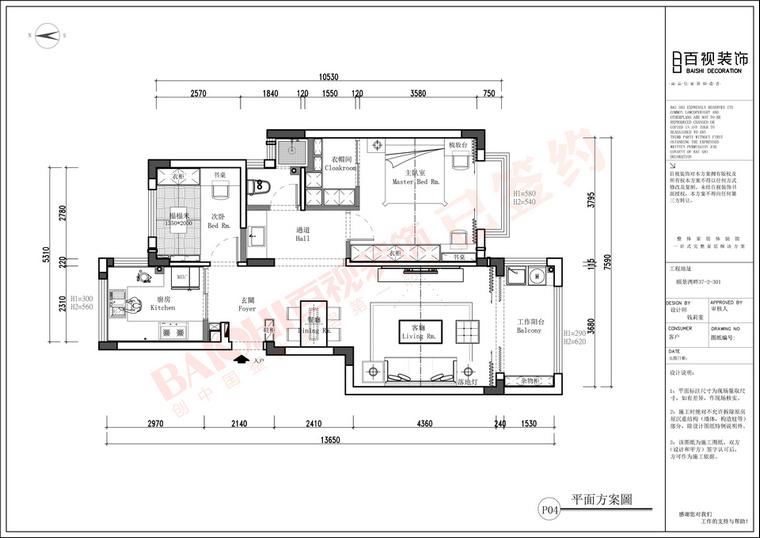
颐景湾畔90平米现代简约设计

现代

预约咨询

案例简介

风格:现代

户型:二居室

面积:0-100㎡

区域:颐景湾畔

关联设计师:

简述:

设计说明






一键预约:  18130360251

预约免费设计,可直接拨打热线

一键预约
咨询电话 在线客服