返回

装修效果图

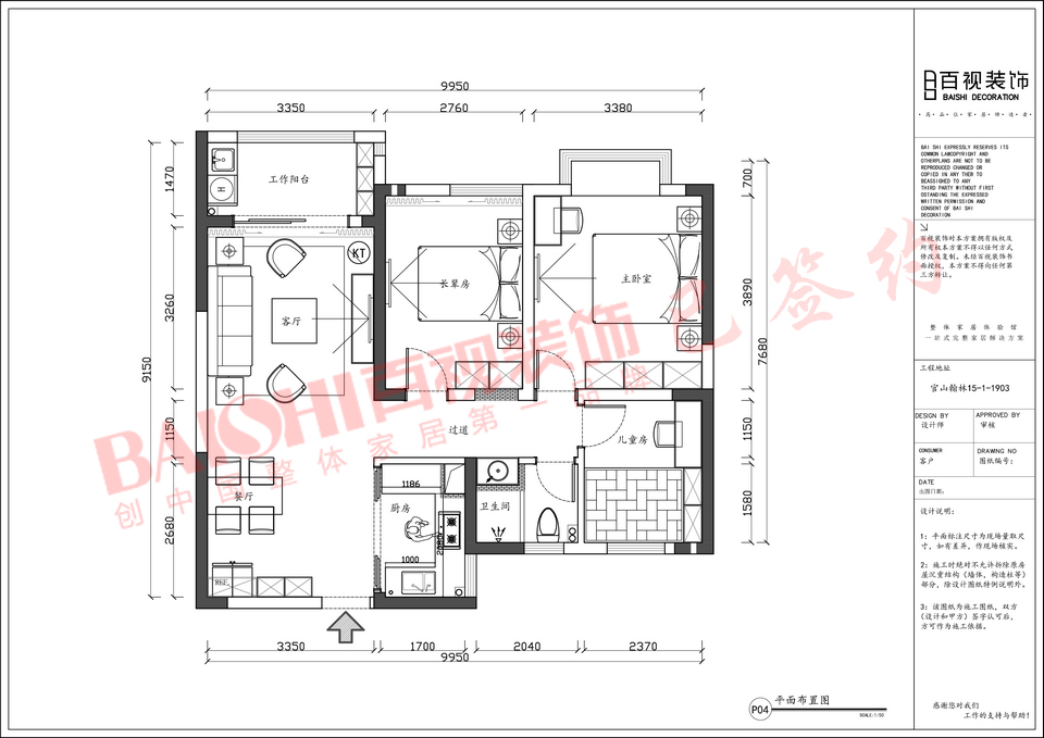
官山翰林103平米新中式风格设计

侘寂风

预约咨询

案例简介

风格:侘寂风

户型:三居室

面积:100-140㎡

区域:官山翰林

关联设计师:

简述:

设计说明






一键预约:  18130360251

预约免费设计,可直接拨打热线

一键预约
咨询电话 在线客服