返回

装修效果图

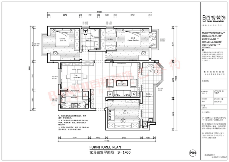
荣盛华府137平港式现代设计

现代

预约咨询

案例简介

风格:现代

户型:三居室

面积:100-140㎡

区域:荣盛华府

关联设计师:黄讯

简述:

设计说明









一键预约:  18130360251

预约免费设计,可直接拨打热线

一键预约
咨询电话 在线客服