返回

装修效果图

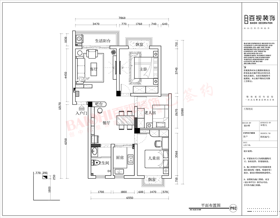
江城国际瑞华苑89平米北欧风格设计

北欧

预约咨询

案例简介

风格:北欧

户型:二居室

面积:0-100㎡

区域:更多小区

关联设计师:朱健

简述:

设计说明








一键预约:  18130360251

预约免费设计,可直接拨打热线

一键预约
咨询电话 在线客服