返回

装修效果图

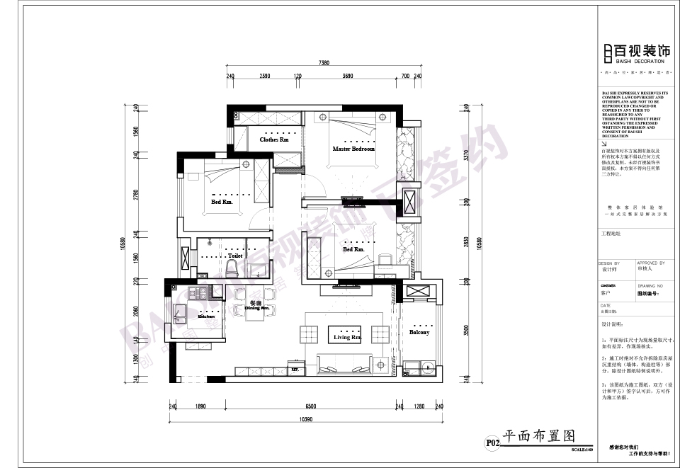
中梁1621 109平米北欧风格设计

北欧

预约咨询

案例简介

风格:北欧

户型:三居室

面积:100-140㎡

区域:中梁1621

关联设计师:

简述:

设计说明






一键预约:  18130360251

预约免费设计,可直接拨打热线

一键预约
咨询电话 在线客服