返回

装修效果图

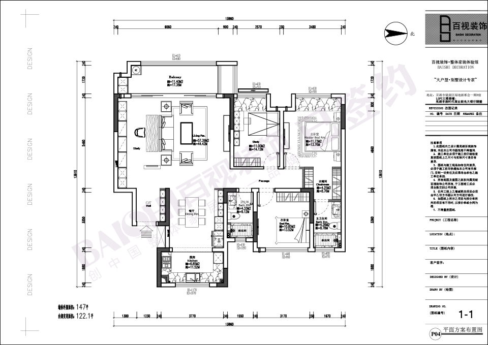
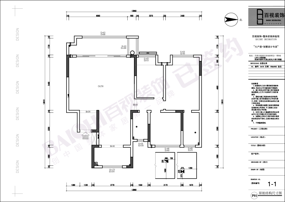
保利香颂152平米现代风格设计

现代

预约咨询

案例简介

风格:现代

户型:四居室

面积:140-180㎡

区域:保利香颂

关联设计师:尚菲菲

简述:

设计说明





一键预约:  18130360251

预约免费设计,可直接拨打热线

一键预约
咨询电话 在线客服